700m2
2100m2
5
1000 m2
150 m2
7+1
2+10
A magnificent 700 sqm house built on a plot of 2,100 sqm with exceptional panoramic views of the coast of Barcelona and the natural park.
It is located in Sant Andreu de Llavaneres, which is considered one of the best developments in Catalunya. For its exclusivity, security and services (tennis courts, paddle tennis, basketball,soccer,etc). .
Just 30 minutes from Barcelona airport, the population has a great sports marina, a golf course and surrounded by nature.
Perfect for lovers of the sea, the forest, and the tranquility and quality of life. All this without giving up the city of Barcelona which is just 30 km away.
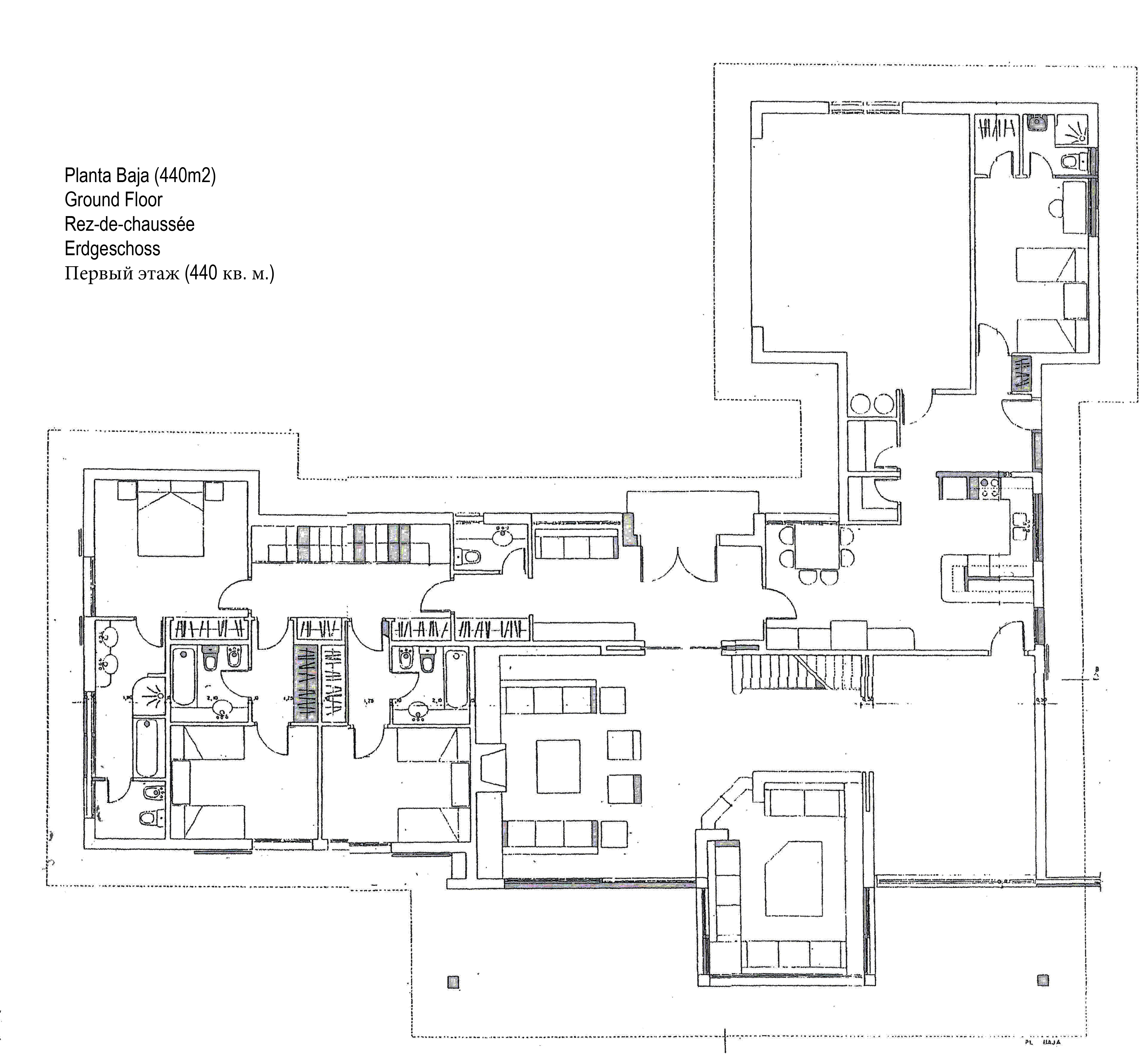
Layout
Groundfloor
Entry Foyer
Main dining room for 20 guests with direct access to terrace & garden, with another table for 10 guests
Small dining room for 6 people
Fully equipped industrial kitchen
Bright Laundry and Ironing Room with access to patio
Pool with Salt Water Chlorination
Locker rooms with bathroom and shower pool
Patio with clotheslines and wide storage lockers
Service Apartment (2 bed. + bathroom and kitchen)
Parking for 2 cars inside and 10 outside
2 kennels
Machine storage pool
Workshop / boiler room
Level 1
Master suite with fireplace and access to sun terrace
Office-library
Full bathroom with shower and tub
2 large closets
Over 150m² of loft to store
Level -1
Multipurpose domotic room for films and music
Toilet with shower
Cellar
Storeroom
Wide outside access to the garden and waterfall
Garden and Pool
Outdoor table with 8 chairs
Exterior Pool with salt water chlorination
Barbecue
6 Sun beds
Kitchen
Oven
Microwave
Dishwasher
Crockery and utensils
Industrial Coldrooms
Ice machine
Cold room and wash
2 pantries
Bell diameter 45cm to 1.5 meters, and smoke output
Equipment and Services
TV
TV: Astra Satellite
HI-FI
Fire place
Washing machine
Dryer
Softener
Diesel oil heating
2 New Boilers Dedietrich
Recent installation of natural gas outlet
Communications
Train at 3 Km (Llavanere’s station)
Bus at 1’5 Km
Barcelona Airport at 30 Km
Motorway at 2 Km / C-32
Beaches at 3 Km: Llavaneres & Caldes d’Estrac
| SALE PRICE |
|---|
| Sold |
| 700 m2 build house , 2100 m2 plot |












