Ramon Berenguer el Vell 6, Local 2Alquilado

72m2
1
Opt.

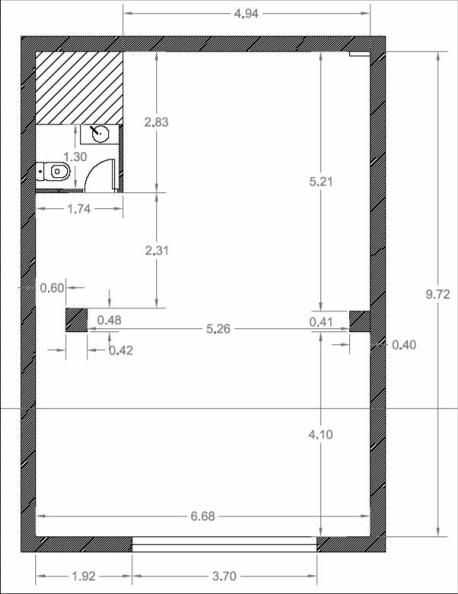
Local comercial de 72m² construidos en edificio de nueva construcción, situado en Barcelona en la calle Ramón Berenguer el Vell, al lado del Museo Marítimo de les Drassanes.

Local totalmente diáfano para realización de cualquier actividad comercial.

Detalles Precio Galería Planos PDF
 Descripción
Espacio totalmente diáfano
1 Lavabo
 Acabados
Pavimento de granito nacional
 Equipamiento y Servicios
Persiana de entrada motorizada
 Comunicaciones
Metro L2 (Paral·lel) / L3 (Drassanes)
Autobús 20-21-36-57-64-120-157
Aeropuerto de Barcelona a 10 Km
Rondas <1 Km
Condiciones ALQUILER
Duración Contrato Gastos Generales

Precio

5-10 Años 50 €

Alquilado

Solicitar más información

 

 

Se han producido los siguientes errores: